The owners are delighted with our proposals!
They feel that the living room is more spacious and love the new atmosphere!
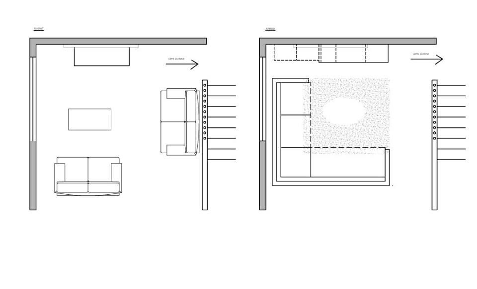
OUR SOLUTIONS : Separate the circulation area of the living room by dividing the space using the the furniture, create a unique TV stand especially for them, and exploit the height of the window by adding draperies and curtains!




